Katalog anfordern

Einstöckiges Haus mit 4 Schlafzimmern und offenem Grundriss im klassischen Stil

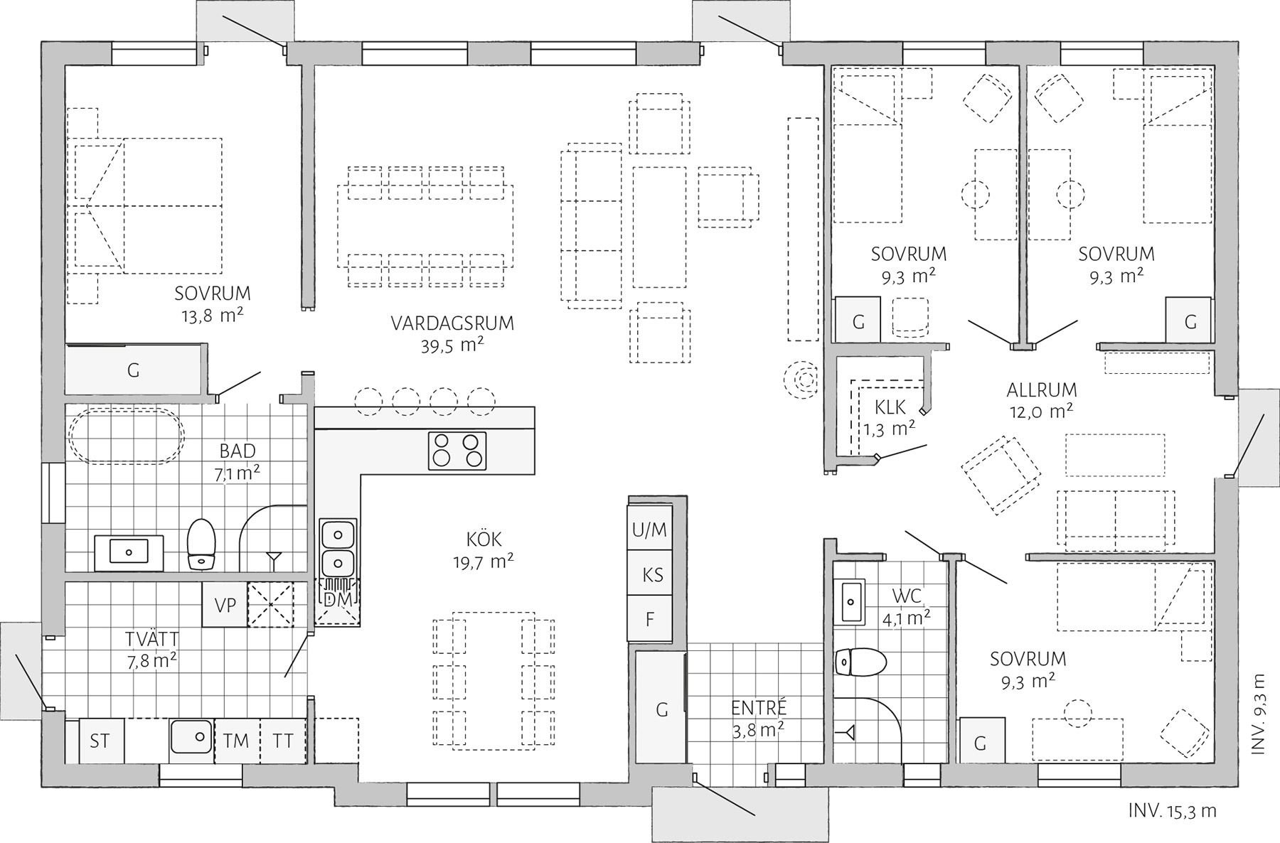
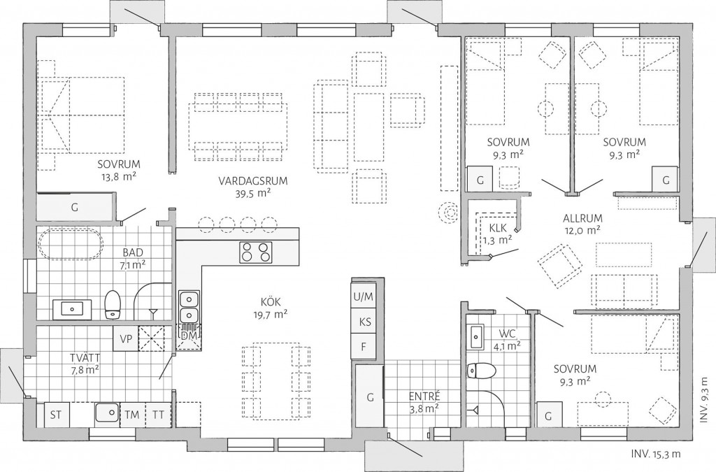
Mit Balken, weißen Knoten und einem einladenden Eingang spiegelt der Prio 141 Traditionell Sicherheit und schwedisches architektonisches Erbe wider. Prio 143 ist nicht ohne Grund unser meistverkauftes Haus. Hier wird jeder Quadratmeter sinnvoll genutzt, der sowohl für große als auch für kleine Familien mit Kindern geeignet ist. Die 4 Schlafzimmer des Hauses sind aufgeteilt, zwei für Erwachsene und zwei für Kinder oder Gäste an jedem Ende des Hauses. In der Mitte werden Wohnzimmer und Küche zum natürlichen Treffpunkt.

  • Prio 143 Traditionell
  • Prio 143 Traditionell

Grundriss

3D-Grundriss

Hausfakten

  • 0
    Zimmer
  • 0m²
    Wohnfläche

Diese Internetseite verwendet Cookies, um die Funktionalität und den Inhalt zu optimieren. Durch die Nutzung unserer Website wird der Verwendung von Cookies zugestimmt. Weitere Informationen zu Cookies und der Verwendung Ihrer Daten erhalten Sie in unserer Datenschutzerklärung.

Einstellungen