Katalog anfordern

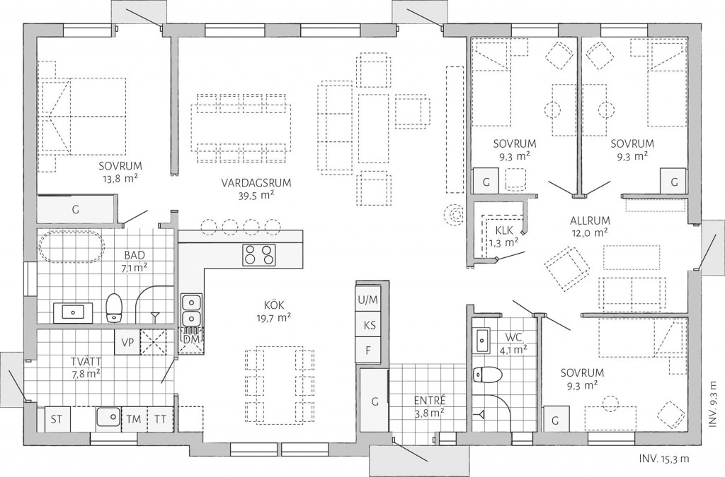
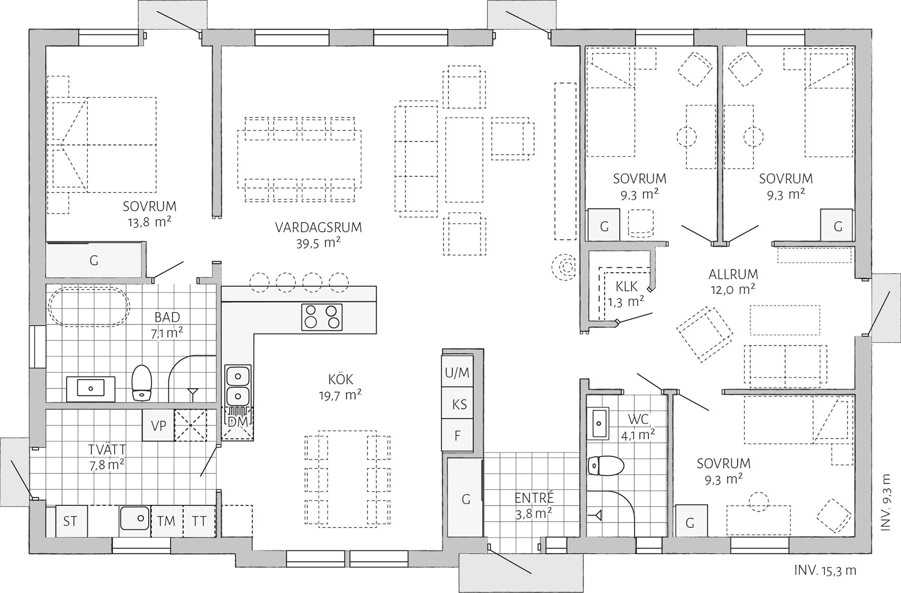
Stilvolles einstöckiges Haus mit 4 Schlafzimmern und offenem Grundriss

Präzise Details und schmale Dachvorsprünge verleihen dem Prio 143 Industrial einen großartigen Charakter. Mit einer Formensprache, die an Künstlerateliers und Scheunen erinnert, passt es sowohl aufs Land als auch in die Stadt. Prio 143 ist nicht ohne Grund unser meistverkauftes Haus. Hier wird jeder Quadratmeter mit einem Grundriss genutzt, der sowohl für große als auch für kleine Familien mit Kindern geeignet ist. Die 4 Schlafzimmer des Hauses sind aufgeteilt, zwei für Erwachsene und zwei für Kinder oder Gäste an jedem Ende des Hauses. In der Mitte werden Wohnzimmer und Küche zum natürlichen Treffpunkt.

  • Prio 143 Industrial
  • Prio 143 Industrial

Grundriss

3D-Grundriss

Hausfakten

  • 0
    Zimmer
  • 0m²
    Wohnfläche

Diese Internetseite verwendet Cookies, um die Funktionalität und den Inhalt zu optimieren. Durch die Nutzung unserer Website wird der Verwendung von Cookies zugestimmt. Weitere Informationen zu Cookies und der Verwendung Ihrer Daten erhalten Sie in unserer Datenschutzerklärung.

Einstellungen