Katalog anfordern

Repräsentatives Haus

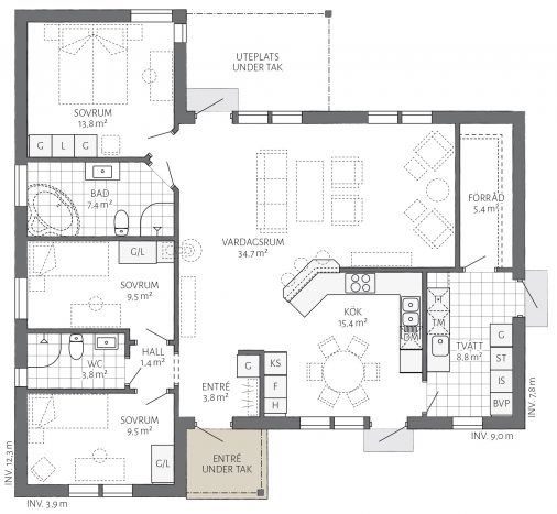
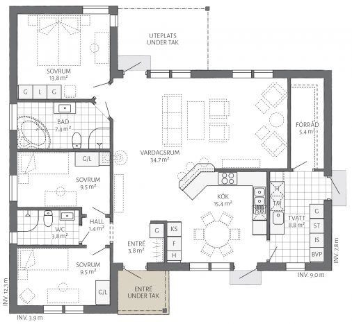
Ein repräsentatives Haus mit großem Walmdach, das sich bei nicht vorhandenem Keller sehr gut als Stauraum nutzen lässt. Der Bungalow erlebt gerade sein Comeback als „Lifestyle-Bauform“ mit offenen Grundrissen und lichtdurchfluteten Räumen. Das großzügig bemessene Walmdach sorgt für einen geschützten Eingangs- und Terrassenbereich.

Die getrennten Trakte „Schlafen“ und „Wohnen“ sind ein klarer Vorteil dieses schönen Entwurfes. Stein oder Putzfassade sind auf Wunsch möglich.

  • Tidö
  • Tidö

Grundriss

Hausfakten

  • 0
    Zimmer
  • 0m²
    Wohnfläche

Diese Internetseite verwendet Cookies, um die Funktionalität und den Inhalt zu optimieren. Durch die Nutzung unserer Website wird der Verwendung von Cookies zugestimmt. Weitere Informationen zu Cookies und der Verwendung Ihrer Daten erhalten Sie in unserer Datenschutzerklärung.

Einstellungen