Katalog anfordern

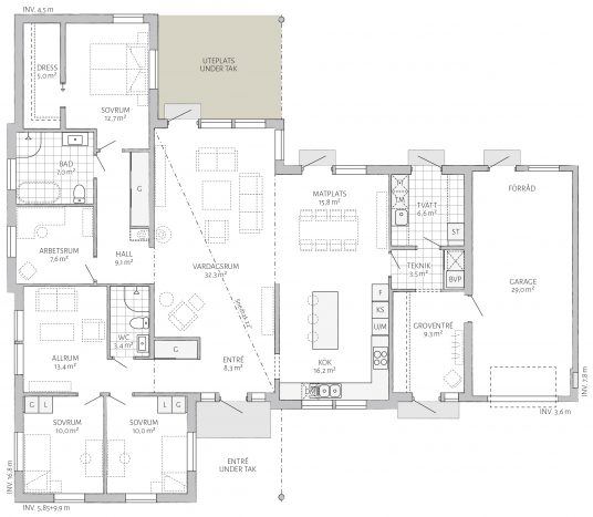
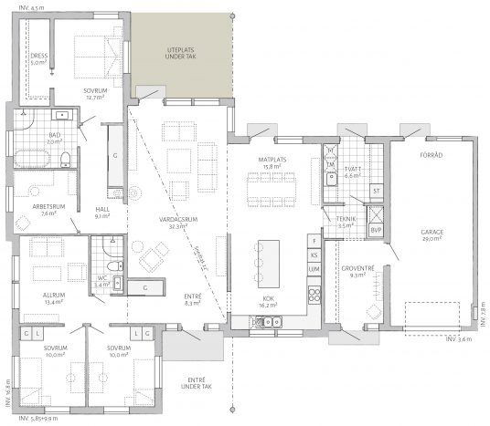
6 Zimmer und Küche

Ein neues, großes, eingeschossiges Haus im Baustil der Funkis – den revolutionären Bauwerken der ’60er Jahre des letzten Jahrhunderts. Solängen ist ein Meisterwerk moderner schwedischer Architektur mit einer ausdrucksstarken klaren Linienführung. Der harmonische Gesamteindruck bestimmt nicht nur das Äußere des Gebäudes, sondern setzt sich auch in dem eleganten Inneren des Hauses fort. Das Entree von Solängen ist designbestimmend und durch eine Überdachung geschützt.

  • Solängen
  • Solängen

Grundriss

3D-Grundriss

Hausfakten

  • 0
    Zimmer
  • 0m²
    Wohnfläche

Diese Internetseite verwendet Cookies, um die Funktionalität und den Inhalt zu optimieren. Durch die Nutzung unserer Website wird der Verwendung von Cookies zugestimmt. Weitere Informationen zu Cookies und der Verwendung Ihrer Daten erhalten Sie in unserer Datenschutzerklärung.

Einstellungen