Katalog anfordern

Lebendiges Design im New-England-Style

Sjöholmen ist ein modernes, eingeschossiges Haus, mit einem aufwendig gewalmten Dach, im New-England-Style. Der Walmgiebel über dem Eingang bietet Schutz gegen Wind und Wetter und schafft zusammen mit dem Winkel der Gartenseite ein lebendiges und harmonisches Design.

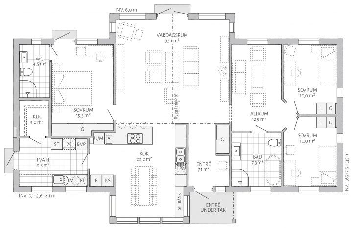
Betritt man dieses Haus begegnet man dem einfallenden Licht des geräumigen Wohnzimmers. Seine Kathedraldecke und seine enorme Fensterpartie bilden das Herz des Hauses. Die Küche bietet viel Platz und Arbeitsfläche für die Bewirtung zahlreicher Gäste. Der im Anschluss liegende Hauswirtschaftsraum ist großzügig gestaltet. Er ist mit einem Nebeneingang ausgestattet und führt Sie zu einem Ankleideraum. Vom Elternschlafzimmer, mit eigenem Duschbad, gelangt man direkt auf die Terrasse. Besonders hervorzuheben ist der gut durchdachte separierte Kindertrakt mit großem Bad und Gemeinschaftsraum, bestens geeignet für den Empfang kleiner Gäste.

  • Sjöholmen
  • Sjöholmen

Grundriss

3D-Grundriss

Hausfakten

  • 0
    Zimmer
  • 0m²
    Wohnfläche

Diese Internetseite verwendet Cookies, um die Funktionalität und den Inhalt zu optimieren. Durch die Nutzung unserer Website wird der Verwendung von Cookies zugestimmt. Weitere Informationen zu Cookies und der Verwendung Ihrer Daten erhalten Sie in unserer Datenschutzerklärung.

Einstellungen