Katalog anfordern

Moderne mit Charakter

Das spannende Äußere wird durch die Begegnung der zwei Pultdächer erzeugt, die diesem Haus zweifellos einen eigenen Charakter verleihen. Die architektonische Formensprache ist modern und betont die Horizontale, die von den liegenden Panelen mit ihren schmalen Futterleisten verstärkt wird. Die zum Garten im Winkel gerichtete Fassade beeindruckt stilvoll mit ihren hohen Fensterpartien und trägt so zu dem exklusiven Gesamteindruck bei.

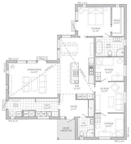
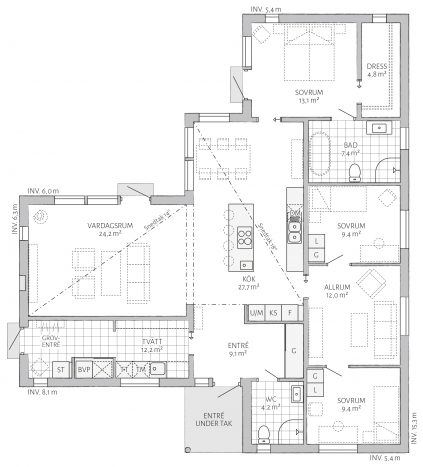
Larvik ist ein Haus mit einer sehr gut disponierten Grundrissgestaltung, die ganz ohne Flure auskommt. Hier findet man eine praktische Küche mit großer Kücheninsel und einem herrlichen Essplatz im verglasten Winkel. Küche und Wohnzimmer ineinander übergehend bieten viel Platz und eine hervorragende Lichtstimmung. Zum Elternschlafzimmer gehören ein Vollbad und eine große Garderobe die durch Schiebetüren begrenzt wird. Die Kinder verfügen über ihren eigenen Bereich mit zwei Schlafzimmern und einem Gemeinschaftsraum.

  • Larvik
  • Larvik

Grundriss

3D-Grundriss

Hausfakten

  • 0
    Zimmer
  • 0m²
    Wohnfläche

Diese Internetseite verwendet Cookies, um die Funktionalität und den Inhalt zu optimieren. Durch die Nutzung unserer Website wird der Verwendung von Cookies zugestimmt. Weitere Informationen zu Cookies und der Verwendung Ihrer Daten erhalten Sie in unserer Datenschutzerklärung.

Einstellungen