Katalog anfordern

Elegantes Familiendomizil

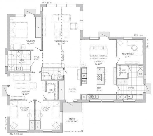
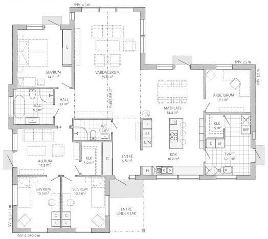
Die 159 m² auf einer Ebene wurden mit vielen innovativen und nützlichen Lösungen geplant. Das Walmdach, die Holzfassade und das Dreiecksfenster auf der Rückseite verleihen der Außenansicht eine elegante Note. Mit drei Schlafräumen ist dieser Bungalow bestens für die Familie geeignet.

Die Schlafräume befinden sich abgeschirmt auf der linken Seite des Hauses. Von hier aus erreicht man auch das Badezimmer und den Gemeinschaftsraum. Der ansonsten offen gehaltene Grundriss unterstützt eindrucksvoll den Lichteinfall über die bodentiefen Fensterelemente des Wohnbereiches. Ein weiterer zur Verfügung stehender Raum kann als Gästezimmer oder Arbeitszimmer dienen.

  • Havsvik
  • Havsvik

Grundriss

3D-Grundriss

Hausfakten

  • 0
    Zimmer
  • 0m²
    Wohnfläche

Diese Internetseite verwendet Cookies, um die Funktionalität und den Inhalt zu optimieren. Durch die Nutzung unserer Website wird der Verwendung von Cookies zugestimmt. Weitere Informationen zu Cookies und der Verwendung Ihrer Daten erhalten Sie in unserer Datenschutzerklärung.

Einstellungen