Katalog anfordern

Südstaatenarchitektur für Ihr Zuhause

Angelehnt an die Architektur der amerikanischen Südstaaten, weisen die Frontveranda und die auffallenden Gauben des Dachbereiches auf den beliebten Southern Country Style hin. Miteinbezogen in die Planung wurde eine Garage die mit dem Haus verbunden ist. Mit einer Gesamtwohnfläche von 176 m² avanciert dieser Entwurf zu einem perfekten Familienhaus.

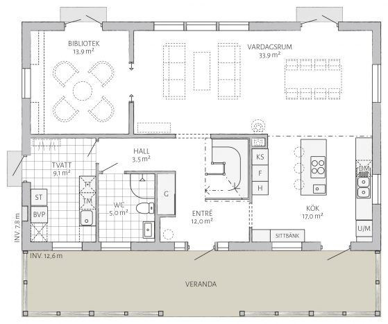
ERDGESCHOSS 98 m² + 29,7 m²
Das nostalgische Äußere des Hauses lässt den raffiniert geplanten, topaktuellen Grundriss nicht vermuten. Ein lichtdurchflutetes großes Wohnzimmer geht nahtlos in die offene Küche mit Esstisch über. Neben dem Hauswirtschaftsraum und dem obligatorischen Gäste-WC bietet dieser Grundriss noch Platz für ein geräumiges Arbeitszimmer.

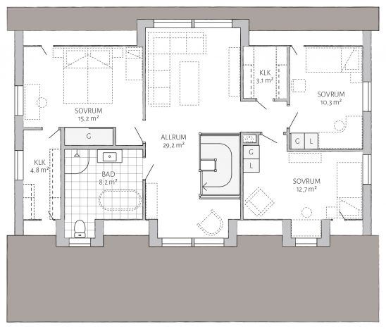
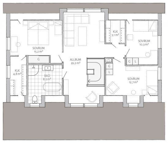
OBERGESCHOSS 78 m²
Über eine zweiviertelgewendelte Treppe erreicht man das Obergeschoss mit vier Räumen und einem Badezimmer. Besonders praktisch ist der begehbare Schrank der vom Elternschlafzimmer zu erreichen ist. Der Verzicht auf Flure lässt hier einen 25,8 m2 großen Gemeinschaftsraum entstehen, den sich beispielsweise die Kinder teilen.

  • Rosenfors
  • Rosenfors

3D-Grundriss

Grundriss

Hausfakten

  • 0
    Zimmer
  • 0m²
    Wohnfläche

Diese Internetseite verwendet Cookies, um die Funktionalität und den Inhalt zu optimieren. Durch die Nutzung unserer Website wird der Verwendung von Cookies zugestimmt. Weitere Informationen zu Cookies und der Verwendung Ihrer Daten erhalten Sie in unserer Datenschutzerklärung.

Einstellungen