Katalog anfordern

Frontveranda zum verlieben

Charakteristisch für dieses große, exklusive Haus ist die mittig konstruierte Gaube. Die Frontveranda ist nicht nur ein außerordentlicher Blickfang, sondern zudem eine Sitzgelegenheit im Freien. Ein originelles Landhaus im schwedischen Stil, das sich mit seinen Abmessungen von 10,85 m x 8,42 m Außenmaß hervorragend für kleine Grundstücke eignet.

ERDGESCHOSS 80 m²
Im Erdgeschoss sind das Wohnzimmer, die Küche, der HWR und das Gästebad untergebracht. Ein weiterer 12,7 m² großer Raum kann als Arbeitszimmer oder Gästezimmer genutzt werden.

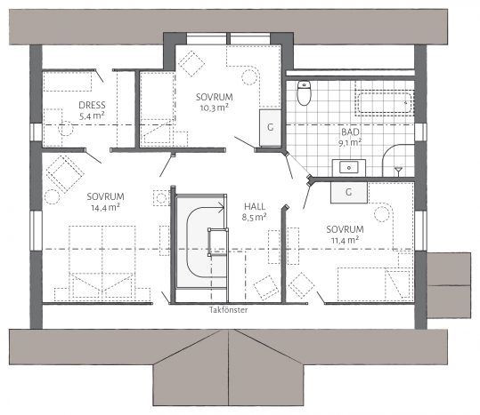
OBERGESCHOSS 62 m²
Hier zeigt sich, dass die Gaube nicht nur dem Haus optisch eine besondere Note verleiht, sondern auch das Raumangebot optimiert. Zwei Kinderzimmer, ein Elternschlafzimmer, Vollbad mit Badewanne und Dusche sowie eine Ankleide sind hier vom Architekten überlegt geplant.

  • Knutstorp
  • Knutstorp

Grundriss

Hausfakten

  • 0
    Zimmer
  • 0m²
    Wohnfläche

Diese Internetseite verwendet Cookies, um die Funktionalität und den Inhalt zu optimieren. Durch die Nutzung unserer Website wird der Verwendung von Cookies zugestimmt. Weitere Informationen zu Cookies und der Verwendung Ihrer Daten erhalten Sie in unserer Datenschutzerklärung.

Einstellungen