Katalog anfordern

5 Zimmer und Küche

Dieses charmante 1 1/2-geschossige Haus ist von Scheunen, Neben- und Wirtschaftsgebäuden inspiriert, wie man sie in Skandinavien findet. Mit wenig Dachüberstand und einfachen Details hat der Stil sowohl eine industrielle als auch eine ländliche Note, weshalb das Haus sowohl draußen auf dem Land als auch in ein Wohnviertel passt.

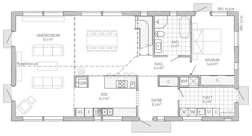
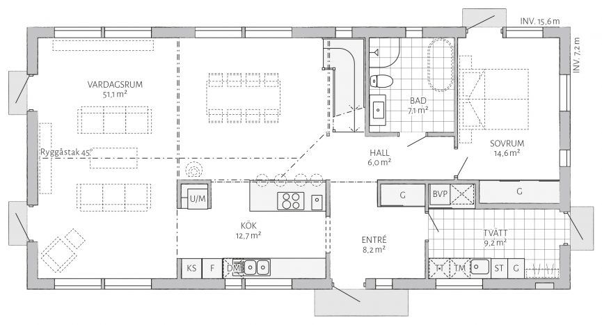
Sobald man zur Haustür hereinkommt, begegnen einem Weite und Offenheit. Küche, Essbereich und Wohnzimmer bilden ein wundervolles offenes Ensemble. Durch das Pfettendachs entsteht ein Raumgefühl, das kaum zu übertreffen ist.

Erdgeschoss
Mit seinen 158 Quadratmetern bietet der Grundriss nicht nur durchdachte Details, sondern auch eine erstaunliche Weite und Höhe. Schlafzimmer, Wohnzimmer und Essplatz sind hier sorgfältig geplant, um jeden Quadratmeter zu nutzen.

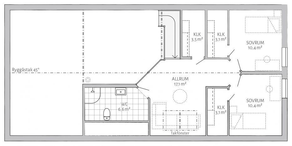
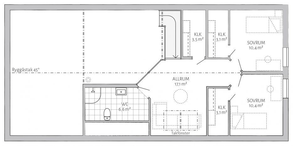
Obergeschoss
Über die mittig angeordnete Treppe, die direkt hinauf führt in das offene Obergeschoss, erreicht man die Balustrade die einen Blick auf das Wohnzimmer und den Essbereich zulässt. Auf dieser Ebene befinden sich auch Dusche und WC, zwei Schlafzimmer jeweils mit eigenem begehbarem Schrank und ein neutraler Abstellraum, in dem nahezu alles Platz findet.

  • Askeryd
  • Askeryd

3D-Grundriss

Grundriss

Hausfakten

  • 0
    Zimmer
  • 0m²
    Wohnfläche

Diese Internetseite verwendet Cookies, um die Funktionalität und den Inhalt zu optimieren. Durch die Nutzung unserer Website wird der Verwendung von Cookies zugestimmt. Weitere Informationen zu Cookies und der Verwendung Ihrer Daten erhalten Sie in unserer Datenschutzerklärung.

Einstellungen