Katalog anfordern

6 Zimmer und Küche

Ängsbacken ist ein exklusives Haus im klassischen romantischen Stil, mit einer einladenden Veranda neben den Flügeltüren des Eingangs. Auf der Rückseite des Hauses genießen Sie einen wundervollen, im Winkel angeordneten, Platz im Freien, von dem aus Sie direkten Zugang sowohl zur Küche, als auch zum Wohnzimmer haben. Ein fast 200 m² großes Familienhaus, dass auch mit einer Stein- oder Putzfassade seine ästhetische Wirkung nicht verliert.

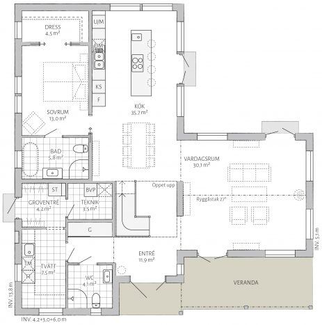
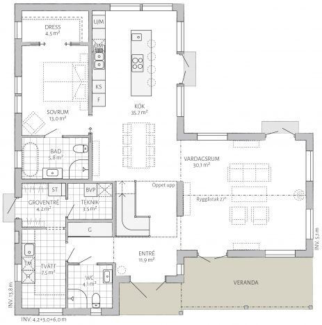
Erdgeschoss
Der offene Grundriss verleiht dem Erdgeschoss nicht nur Größe, sondern auch eine luxuriöse Anmutung. Sehr modern und im Trend die offene Küche mit direkter Verbindung zum Wohnzimmer. Das im Erdgeschoss untergebrachte Elternschlafzimmer, mit eigenem Bad, unterstreicht den gehobenen Anspruch dieses Entwurfs.

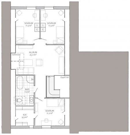
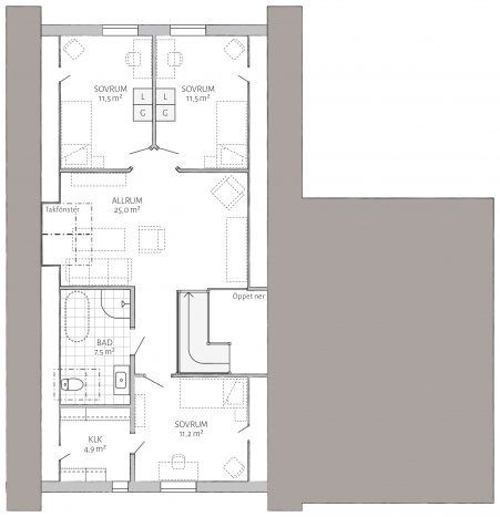
Obergeschoss
Drei gleichgroße Kinderzimmer, ein Gemeinschaftsraum und ein weiteres großes Vollbad, bieten genügend Raum für eine große Familie.

  • Ängsbacken
  • Ängsbacken

3D-Grundriss

Ängsbacken Grundriss

Ängsbacken

Grundriss

Hausfakten

  • 0
    Zimmer
  • 0m²
    Wohnfläche

Diese Internetseite verwendet Cookies, um die Funktionalität und den Inhalt zu optimieren. Durch die Nutzung unserer Website wird der Verwendung von Cookies zugestimmt. Weitere Informationen zu Cookies und der Verwendung Ihrer Daten erhalten Sie in unserer Datenschutzerklärung.

Einstellungen